Kontakt
Pracownia Projektowa
Pewa-Projekt s.c
Ł.Pilch, A.Pilch
ul.Bieżanowska 51/9
30-812 Kraków
NIP: 679-307-80-68
REGON: 12 244 78 21
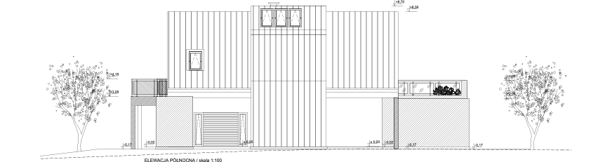
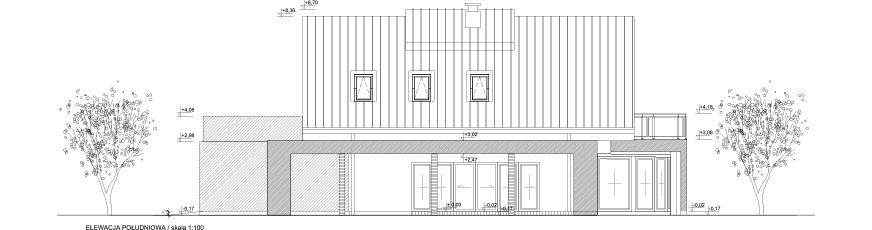
Budowa domu jednorodzinnego
Inwestor: prywatny
Adres: Giebułtów
Powierzchnia użytkowa: ok 200m2
Projekt: 2012
Zakres: instalacje wod-kan-deszcz, wentylacja mechaniczna, centralne ogrzewanie, kocioł gazowy
Architekt: Fortes Studio